3010 S 72nd Street 53, Lincoln, NE 68506
3010 S 72nd Street 53, Lincoln, NE 68506
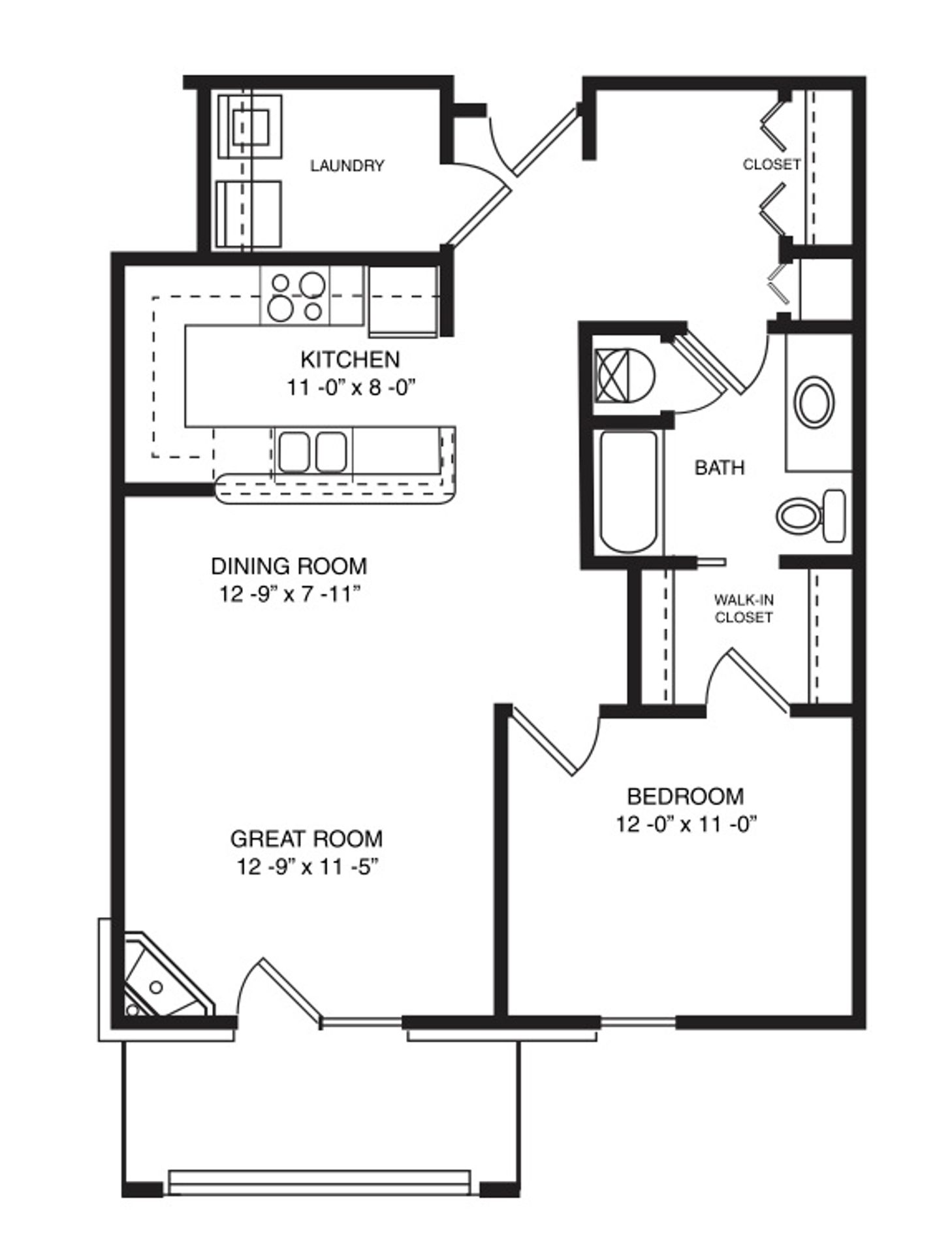
Terrace View - Open concept 1 bedroom apartment with fireplace & washer/dryer included.
This is our Terrace View floorplan with one bedroom, one bathroom, and 882 square feet of living space. This floorplan offers a fully-equipped kitchen, washer/dryer in-unit, and generous storage space. Please call a member of our friendly leasing staff for more information!
Take a look on our interactive map!
Chateau Terrace Apartments, located in Southeast Lincoln, Nebraska, features spacious one bedroom and two bedroom apartment homes for rent with giant great rooms, walk-in closets, gas or electric fireplaces, deluxe bathroom suites, gourmet kitchens, and more. The apartment community also offers a private health club, swimming pool, and fitness center. Located right across from Holmes Lake Park, Chateau Terrace also accepts cats. Call today for more information!
Take a look on our interactive map!
Chateau Terrace Apartments, located in Southeast Lincoln, Nebraska, features spacious one bedroom and two bedroom apartment homes for rent with giant great rooms, walk-in closets, gas or electric fireplaces, deluxe bathroom suites, gourmet kitchens, and more. The apartment community also offers a private health club, swimming pool, and fitness center. Located right across from Holmes Lake Park, Chateau Terrace also accepts cats. Call today for more information!
Contact us:





















































